







Lease opportunity in the brand new Sunseeker Building! Enjoy an abundance of amenities including outdoor pool and hot tub, golf simulator room, lounge with pool table, cinema room, party room and pet washing station! The Sunseeker building is conveniently located steps from the boardwalk and across from the lake Club! Friday Harbour offers a waterfront experience like no other, including; outdoor pools, kids splash pad, Dining, shops, nature preserve, golf course, marina, beach, gym, outdoor sports courts and much more!
Home highlights
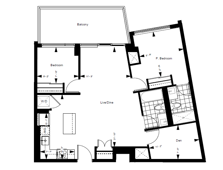
- 2 Beds plus den
- 9’ ceilings
- 1 Parking Spot
Floorplan
Resort Living
Dive into the many delights of living at Friday Harbour, including membership to The Lake Club, Beach Club Pool and FH Fit. Residents receive priority access and preferred rates to the Nest golf course and the Marina.
Additional homes may be available. Call today!
Discover your next dream home. Sign up to receive more information and updates about Friday Harbour Real Estate Brokerage.
Thank you for your interest.
